à Louer à Central Nord, Peterborough, Ontario
2 499.00 $ /mois1 Chambres
1 Salle de bain
-
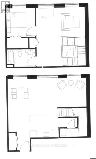
Détails
-
Carte
-
Données démographiques
-
Vue de la rue
-
Itinéraire
-
Publicité








