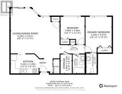
109 - 521 RIVERSIDE DRIVE, London North (North P), Ontario, N6H 5E2
369 900 $No. MLS® X12434399
Le contenu de cette inscription est fourni par REALTOR.ca et a été autorisé par les membres de l'Association canadienne de l'immeuble.
Photos supplémentaires

































