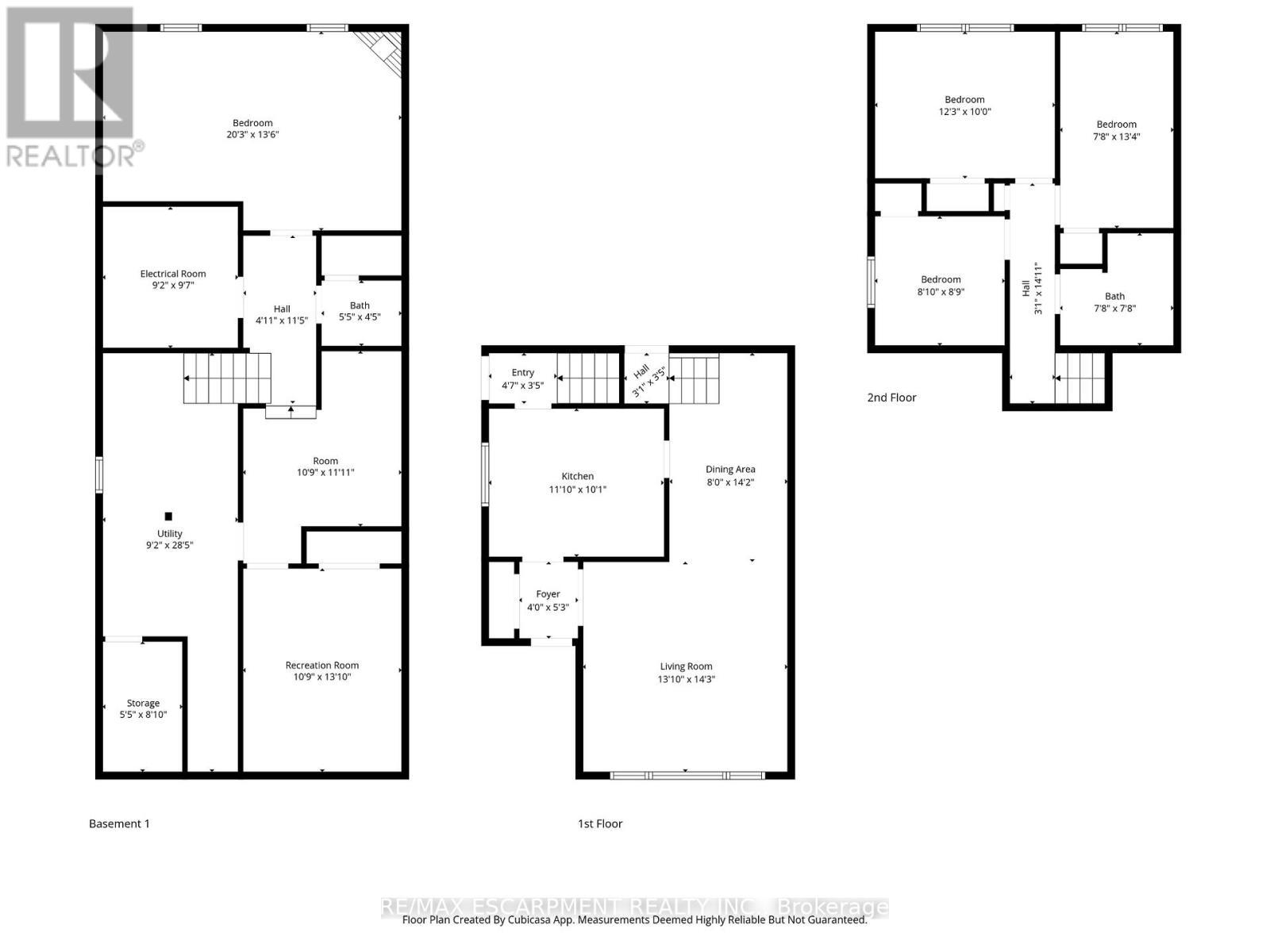
Commercial À vendre à Templemead, Hamilton, Ontario
474 900 $3+1 Chambres
2 Salles de bain
-
Détails
-
Carte
-
Données démographiques
-
Vue de la rue
-
Itinéraire
-
Publicité



















