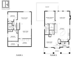
4967 Saddlewood Lane, Radium Hot Springs, British Columbia, V0A 1M0
810 000 $No. MLS® 10358796
Le contenu de cette inscription est fourni par REALTOR.ca et a été autorisé par les membres de l'Association canadienne de l'immeuble.
Photos supplémentaires


































































