102 PONDEROSA View, Kimberley, BC, V1A 0A5
1 090 000 $No. MLS® 10346832
Maison À vendre à Kimberley, Colombie-Britannique
4
Chambres
3
Salles de bain
-
0.27 Acres
Dimension du terrain
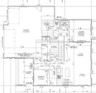
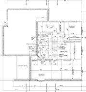
Plan ahead for your new Tyee built home. This pre-sale home Is being built in Ponderosa View and is perfect for empty nesters. This home features everything on the main floor, it is a great layout! There is still plenty of room for the family with 1560 square feet on the main as well as the partially finished walk out basement. The features of the home are an open layout with a large living room opening to a covered deck a spacious master bedroom with access to the open deck. There is a second bedroom or potential office on the main and a third bedroom and bathroom in the basement. Use your creativity to decide how you want to finish the rest of the walk out basement and incorporate your yard for additional entertaining space. The garage space is spectacular with room for two cars and all the extras. Just pull in and walk into a large mud room, drop the groceries in the butlers pantry and enjoy your home. Set up a time with your REALTOR to discuss the options end timeline for the home of your future.
Caractéristiques :
- Taxes annuelles totales: 2 007 $
- Bâti en: 2025
- Caractéristiques du bord de l'eau: Aucun
- Caractéristiques du stationnement: Attenant, Garage
- Chambres : 4
- Chauffage: Air pulsé
- Climatisation: Aucun
- Dimensions du terrain : 0.27 Acres
- Égouts: Égout public
- Matériaux de construction: Bardage composite, Mixte, Pierre, Revêtement de bois, Charpente en bois
- Revêtements de sol: Mixte
- Salle(s) de bains : 2+1
- Source d'eau: Public
- Style architectural: Bungalow
- Superficie habitable (approx): 3120 Pieds carrés
- Toiture: Métal
- Nbre d'espaces de stationnement: 3
Détails des pièces :
- Chambre Rez-de-chaussé 2.92 m x 3.05 m 9.58 p x 10 p
- Chambre Rez-de-chaussé 2.92 m x 3.05 m 9.58 p x 10 p
- Vestibule Rez-de-chaussé 4.88 m x 1.75 m 16 p x 5.75 p
- Salle de bains Rez-de-chaussé .00 m x .00 m 0 p x 0 p
- Chambre principale Rez-de-chaussé 4.27 m x 4.27 m 14 p x 14 p
- Salle de bain ensuite Rez-de-chaussé 3.05 m x 3.05 m 10 p x 10 p
- Salon Rez-de-chaussé 5.18 m x 3.81 m 17 p x 12.5 p
- Salle à dîner Rez-de-chaussé 3.35 m x 3.45 m 11 p x 11.33 p
- Cuisine Rez-de-chaussé 3.45 m x 3.05 m 11.33 p x 10 p
- Salle de bains Sous-sol .00 m x .00 m 0 p x 0 p
- Chambre Sous-sol 3.83 m x 3.43 m 12.58 p x 11.25 p
Gracieuseté de : Royal LePage East Kootenay Realty
This listing content provided by Association of Interior REALTORS.
Photos supplémentaires


