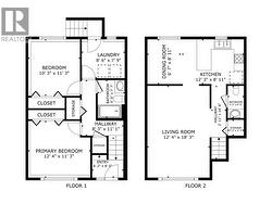
588 McCurdy Road, Kelowna, British Columbia, V1X 2P5
495 000 $No. MLS® 10368743
Le contenu de cette inscription est fourni par REALTOR.ca et a été autorisé par les membres de l'Association canadienne de l'immeuble.
Photos supplémentaires





























