2 625 000 $

Maison À vendre à Glenora, Edmonton, Alberta

2 625 000 $
  • 4

    Chambres

  • 4

    Salles de bain

  • 650.52 Mètres carrés

    Dimension du terrain

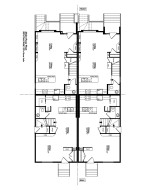
The quality and location you would expect when a multi-million dollar home builder builds a multi family project. 8 plex with 4 basement suites ( 1 bed) 2 ( 3 bed) and 2 (2 bedroom) above grade. Over 100K in upgrades including Walkout basement, upgraded Windows, Kitchen Aid Appliances, iron elements, vinyl flooring, upgraded tile package, quartz, countertops and MUCH more. Proudly built by Varsity Homes Ltd.. Be the landlord that rents for the most in the desirable neighborhood of Glenora. This project qualifies for CMHC MLI select. This project also has separate electrical, gas adn water meters as per MLI select requirements.

Particularités du bâtiment :

  • Garage: Oui
  • Surface utile: 451.69

Caractéristiques :

  • Accès routier: Pavé
  • Appareils ménagers: Lave-vaisselle encastré, Sécheuse, Réfrigérateur, Cuisinière au gaz avec surface de cuisson, Laveuse
  • Bâti en: 2025
  • Caractéristiques de commodités: Système de gicleurs, Plafond 9 pieds - sous-sol
  • Caractéristiques de la communauté: Système de gicleurs, Plafond 9 pieds - sous-sol
  • Caractéristiques du stationnement: Quatre ou plus détachés
  • Caractéristiques extérieures: Écoles, Centre commercial à proximité
  • Chambres : 3+1
  • Chauffage: =Air pulsé-1, Gaz naturel
  • Détails de la fondation: Périmètre en béton
  • Dimensions du terrain : 650.52 Mètres carrés
  • État du sous-sol: Fini
  • Forme du lot: Rectangulaire
  • Points d'intérêt du site: Écoles, Centre commercial à proximité
  • Revêtement de plancher: Moquette, Carreaux de céramique, Planches en vinyle
  • Salle(s) de bains : 3+1
  • Sous-sol: Pleine grandeur, Fini
  • Style architectural: 2 étages
  • Superficie habitable (approx): 451.69 Mètres carrés
  • Toit: Bardeaux d'asphalte
  • Type de bâtiment: Quadruplex
  • Type de sous-sol: Pleine grandeur
  • Zonage: Zone 11

Gracieuseté de : Initia Real Estate

Dernière mise à jour des données le 2025-12-19 à 17:11

The data relating to real estate for sale on this web site comes in part from the Internet Data exchange (“IDX”) program of the REALTORS® Association of Edmonton. IDX information is provided exclusively for consumers' personal, non-commercial use and may not be used for any purpose other than to identify prospective properties consumers may be interested in purchasing. The data on this website is deemed reliable but is not guaranteed accurate by the REALTORS® Association of Edmonton. Information deemed reliable but not guaranteed.

Copyright 2025 by the REALTORS® Association of Edmonton. All Rights Reserved. Data is deemed reliable but is not guaranteed accurate by the REALTORS® Association of Edmonton.