139 Taskamanwa STREET, Saskatoon, Saskatchewan, S7V 1X3
$509,900MLS® # SK025301
House For Sale In Brighton, Saskatoon, Saskatchewan
5
Bedrooms
3
Baths
-
26.2x116.9
Lot Size
Property Information:
Extremely well appointed bi-level with legal two-bedroom suite! Designed and priced exclusively for savvy investors, first-time home buyers or those looking to downsize. For only $509,900.00 you get a beautifully built bilevel with the following included: Finished legal suite with separate gas and electrical meters. Finished front landscaping with concrete walkways to main door and suite door. Vaulted ceilings throughout main living area, dining room and kitchen. Luxury vinyl plank flooring throughout for great durability and aesthetic appeal (No Carpet!). Upgraded Hardie Board exterior accents. This is a pre-sale opportunity. GST & PST are included in the purchase price with any applicable rebate to builder. If purchaser(s) do not qualify for the rebates additional fees apply. Renderings were completed to be as close to the finishing as possible but should be regarded as artistic in nature. Please NOTE: Appliances are not included in the price. Limited inventory is available, contact your agent for further details! (id:27)
Building Features:
- Style: Detached
- Building Type: House
- Architectural Style: Bi-level
- Basement Development: Partially finished
- Basement Type: Full
- Fireplace Fuel: Gas
- Fireplace Type: Conventional
- Floor Space: 1005 sqft
- Heating Type: Forced air
- Heating Fuel: Natural gas
Property Features:
- OwnershipType: Freehold
- Property Type: Single Family
- Bedrooms: 5
- Bathrooms: 3
- Built in: 2025
- Features: Sump Pump
- Floor Space (approx): 1005 Square Feet
- Irregular: Yes
- Lot Frontage: 26.2 Feet
- Lot Size: 26.2x116.9
- Parking Type: Parking pad, None, Parking Spaces
- No. of Parking Spaces: 2
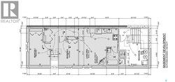
Rooms:
- Other Basement Level 4.42 m x 5.03 m 14.50 ft x 16.50 ft
- Bedroom Basement Level 2.79 m x 3.05 m 9.17 ft x 10.00 ft
- Bedroom Basement Level 2.59 m x 3.15 m 8.50 ft x 10.33 ft
- Bathroom Basement Level Measurements not available
- Other Basement Level Measurements not available
- Kitchen Main Level 4.22 m x 2.74 m 13.83 ft x 9.00 ft
- Dining Main Level 2.62 m x 2.74 m 8.58 ft x 9.00 ft
- Living Main Level 3.15 m x 3.05 m 10.33 ft x 10.00 ft
- Primary Bedroom Main Level 2.90 m x 3.56 m 9.50 ft x 11.67 ft
- Bathroom Main Level Measurements not available
- Bedroom Main Level 2.74 m x 2.64 m 9.00 ft x 8.67 ft
- Bedroom Main Level 2.74 m x 2.64 m 9.00 ft x 8.67 ft
- Bathroom Main Level Measurements not available
Courtesy of: eXp Realty
This listing content provided by REALTOR.ca has been licensed by REALTOR® members of The Canadian Real Estate Association.
This listing content provided by REALTOR.ca has been licensed by REALTOR® members of The Canadian Real Estate Association.
Additional Photos



