Pointe-Claire QC, H9R 1G3
Property Information:
PROMOTION: For a limited time only, the seller is offering an exclusive promotion. The Interest rate will be of 2.9% for the first three years.
Welcome to Seville West 2, a new construction in Pointe-Claire! Located in one of the most desirable neighbourhoods, this luxurious condo offers a perfect blend of modern design and convenience. With its prime location, stunning features and premium amenities, this is an incredible opportunity to acquire one of these condos!
Inclusions: indoor parking, storage space,
Exclusions : washer and dryer, Notary fees, Certificate of location, Mutation taxe, Hydro-Quebec connection fee, Cable, Internet, telephone connection fees, Decoration and lights fixtures, Furniture and, Colors wall paint,
Building Features:
- Style: Apartment
- Basement: None
- Lot: Fenced, Landscaped
- Parking: Garage
- Pool: Indoor
- Proximity: Highway, CEGEP, Hospital, Park, Elementary school, Réseau Express Métropolitain (REM), High school, Public transportation
- Siding: Brick
- Washer/Dryer (installation): Bathroom
- Windows: PVC
- Heating System: Electric baseboard units
- Heating Energy: Electricity
- Water Supply: Municipality
- Sewage System: Municipality
Taxes:
- Municipal Tax: $0
- School Tax: $0
- Annual Tax Amount: $0
Expenses:
- Condo Fees: $368 Monthly
Property Features:
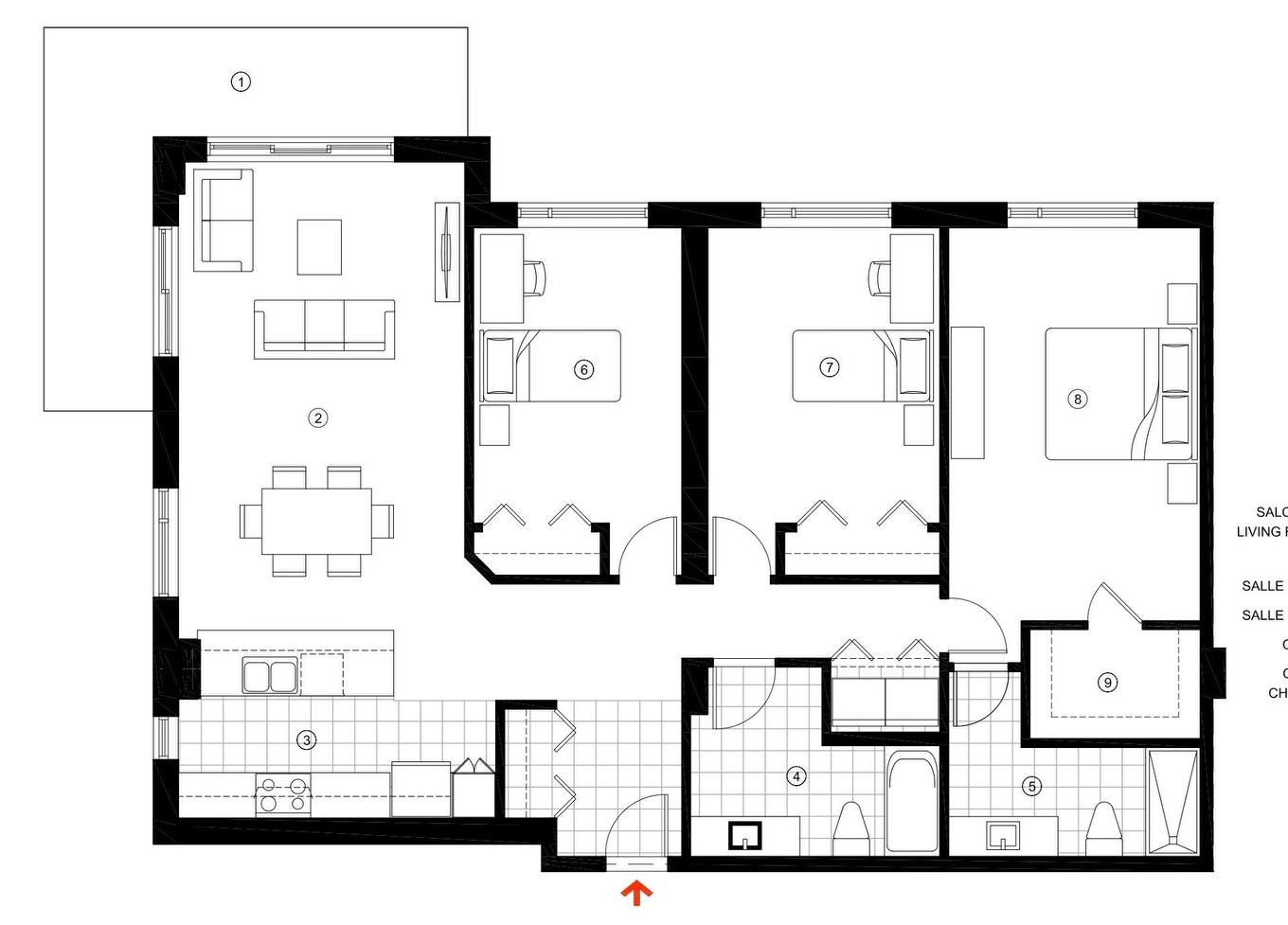
- Bedrooms: 3
- Bathrooms: 2
- Floor Space (approx): 1472.0 Square Feet
- Zoning: RESI
- No. of Parking Spaces: 1
Rooms:
- Living 2nd Level 3.99 m x 6.81 m 13.1 ft x 22.4 ft Flooring: Wood
- Kitchen 2nd Level 4.42 m x 2.34 m 14.6 ft x 7.8 ft Flooring: Ceramic
- Primary Bedroom 2nd Level 3.51 m x 5.46 m 11.6 ft x 17.11 ft Flooring: Wood
- Bedroom 2nd Level 2.90 m x 4.11 m 9.6 ft x 13.6 ft Flooring: Wood
- Bedroom 2nd Level 3.23 m x 4.11 m 10.7 ft x 13.6 ft Flooring: Wood
- Bathroom 2nd Level 3.48 m x 2.51 m 11.5 ft x 8.3 ft Flooring: Ceramic
- Bathroom 2nd Level 3.51 m x 1.52 m 11.6 ft x 5.0 ft Flooring: Ceramic
- Walk-in Closet 2nd Level 2.39 m x 1.52 m 7.10 ft x 5.0 ft Flooring: Wood
Convert Measurement to:
Data provided by: Centris - 600 Ch Du Golf, Ile -Des -Soeurs, Quebec H3E 1A8
All information displayed is believed to be accurate but is not guaranteed and should be independently verified. No warranties or representations are made of any kind. Copyright© 2021 All Rights Reserved.
Market Price Trends
Location of 201-244 Boul. Hymus, Pointe-Claire, QC, H9R 1G3
Demographic Information of 201-244 Boul. Hymus, Pointe-Claire, QC, H9R 1G3
Life Stage
Later YearsEmployment Type
Service Sector/White CollarAverage Household Income
$132,502.71Average Number of Children
1.72Household Population
Household Structure
Age of Population
Education
Education Level
No certificate/diploma/degree
8.22 %High school certificate or equivalent
24.03 %Apprenticeship trade certificate/diploma
6.38 %College/non-university certificate
22.21 %University certificate (below bachelor)
3.08 %University Degree
36.08 %Commuter
Travel To Work
By Car
78.98 %By Public Transit
6.13 %By Walking
9.95 %By Bicycle
0.0 %By Other Methods
4.94 %Cultural Diversity
Knowledge of Official Language
Mother Tongue
Building Information
Building Type
Apartments (Low and High Rise)
32.8 %Houses
67.2 %






































