Montréal (Ahuntsic-Cartierville) QC, H2C 2A1
Property Information:
Fully renovated condo; Delivery April 2026! This condo is undergoing a complete rebuild following damage. The original structure has been preserved, but everything else is being redone (2025-2026), with repairs to defects, ventilated roofing, improved drainage and backflow prevention. Ideal location: close to Sauvé metro station, commuter trains, VIA Rail network and several bus lines, grocery stores, pharmacies, restaurants, primary and secondary schools. A modern flat in an established area, perfect for families, professionals or investors.
Fully renovated flat to be delivered in April 2026!
This flat, located on the ground floor of a building dating from 2003, is undergoing complete reconstruction. Work is underway for a complete refurbishment, with delivery scheduled for April 2026.
What you need to know:
- Original structure retained (2003), but everything else is being refurbished (2025-2026)
- Identical reconstruction with correction of initial defects
- Roof completely redone and ventilated
- City drain and backups corrected during construction
- Water infiltration that occurred during firefighting now taken care of
The condo is located in Ahuntsic-Cartierville, a peaceful and dynamic area, ideal for families, professionals or investors.
*Transportation nearby: Sauvé station (orange metro line), connection to commuter trains, connection to the VIA Rail network and bus lines 121, 146, 30 and 378.
*Amenities nearby: Grocery stores, pharmacies, cafés, restaurants, shopping centres and various services.
*Education and recreation nearby: primary schools, secondary schools, parks, community centres, sports facilities and the Saints-Martyrs-Canadiens Recreation Centre.
Translated with DeepL.com (free version)
Inclusions: Lighting fixtures
Building Features:
- Style: Apartment
- Proximity: Highway, CEGEP, Hospital, Metro, Park, Bicycle path, Elementary school, Réseau Express Métropolitain (REM), High school, Commuter train, Public transportation, University
- Size: 35.0 x 18.0 Feet
- View: Panoramic, View of the city
- Water Supply: Municipality
- Sewage System: Municipality
Taxes:
- Municipal Tax: $1,569
- School Tax: $115
- Annual Tax Amount: $1,684
Expenses:
- Condo Fees: $223 Monthly
Property Assessemnt:
- Lot Assessment: $44,200
- Building Assessment: $164,300
- Total Assessment: $208,500
Property Features:
- Bathrooms: 1
- Built in: 2003
- Floor Space (approx): 55.9 Square Metres
- Irregular: Yes
- Zoning: RESI
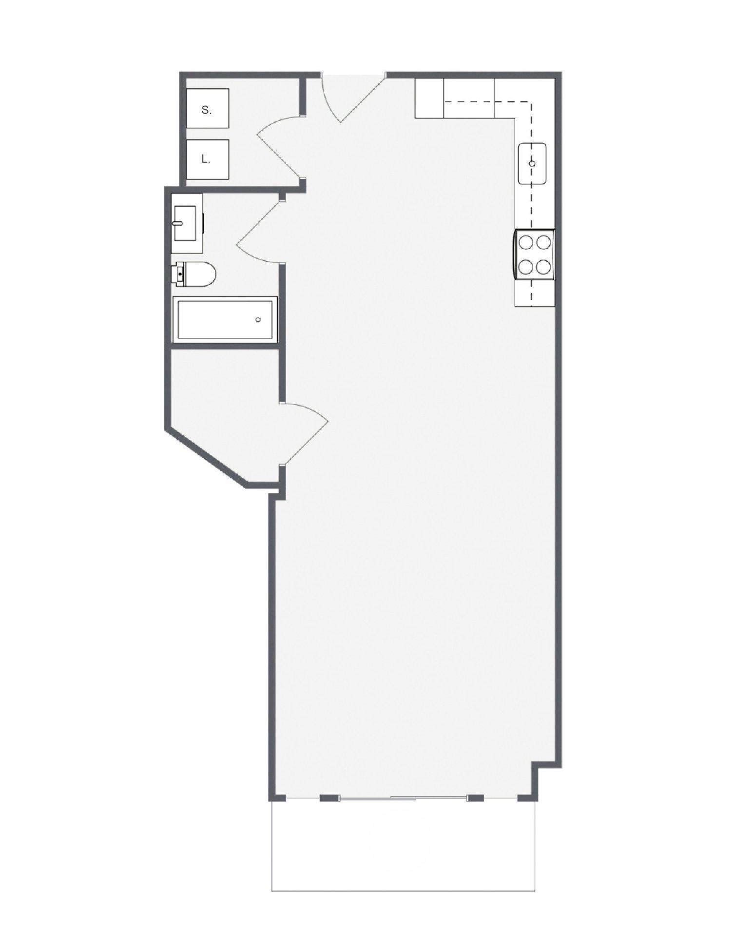
Rooms:
- Other Ground Level 3.96 m x 11.33 m 13 ft x 37.2 ft Flooring: Wood Note: Open Air
- Bathroom Ground Level 1.68 m x 1.60 m 5.6 ft x 5.3 ft Flooring: Ceramic
- Laundry Ground Level 1.50 m x 2.74 m 4.11 ft x 9 ft Flooring: Ceramic
Convert Measurement to:
Data provided by: Centris - 600 Ch Du Golf, Ile -Des -Soeurs, Quebec H3E 1A8
All information displayed is believed to be accurate but is not guaranteed and should be independently verified. No warranties or representations are made of any kind. Copyright© 2021 All Rights Reserved.
Market Price Trends
Location of 102-1310 Rue Sauvé E., Montréal (Ahuntsic-Cartierville), QC, H2C 2A1
Demographic Information of 102-1310 Rue Sauvé E., Montréal (Ahuntsic-Cartierville), QC, H2C 2A1
Life Stage
Young SinglesEmployment Type
Service Sector/White CollarAverage Household Income
$125,201.22Average Number of Children
1.77Household Population
Household Structure
Age of Population
Education
Education Level
No certificate/diploma/degree
15.26 %High school certificate or equivalent
14.94 %Apprenticeship trade certificate/diploma
8.73 %College/non-university certificate
19.18 %University certificate (below bachelor)
3.35 %University Degree
38.53 %Commuter
Travel To Work
By Car
60.75 %By Public Transit
23.38 %By Walking
9.11 %By Bicycle
6.1 %By Other Methods
0.66 %Cultural Diversity
Knowledge of Official Language
Mother Tongue
Building Information
Building Type
Apartments (Low and High Rise)
73.42 %Houses
26.58 %


