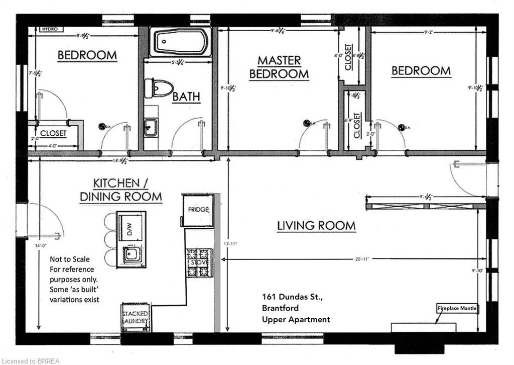
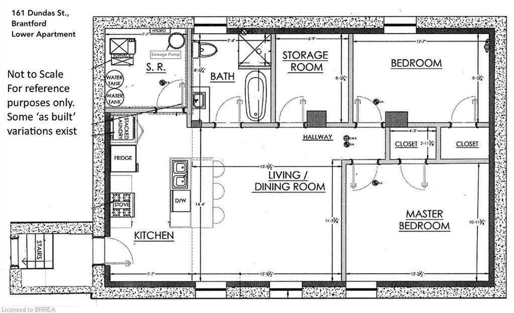
Brantford ON, N3R 1S6
MLS® # 40743202
⚠ Potential Investment Performance
There is not enough data on this property to provide a potential investment performance at this time, please click the button below for an in-person valuation































